Rif: 033
VARALLO POMBIA
NOVARA
Nel comune di Varallo Pombia in zona centrale disponiamo di terreno edificabile residenziale di circa 500 mq con capacità edificatoria fino a 120 mq di abitazione al piano terreno ed altrettanti metri al piano seminterrato ad uso magazzino/autorimessa.
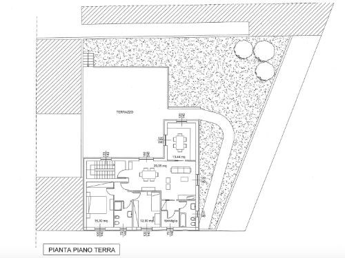
Presso i nostri uffici disponiamo già di due bozze di progetto per una villetta singola tutta su un piano al P.T., oltre magazzino/autorimessa al P. seminterrato.
Si tratta di un'ottima offerta in quanto il contesto è tranquillo, l'area è ben servita ed il prezzo è davvero interessante per poter costruire un'abitazione singola ed indipendente.
Soluzione ideale per chi desidera costruire la propria abitazione secondo le proprie esigenze e personalizzazioni.
Presso i nostri uffici disponiamo già di due bozze di progetto per una villetta singola tutta su un piano al P.T., oltre magazzino/autorimessa al P. seminterrato.
Si tratta di un'ottima offerta in quanto il contesto è tranquillo, l'area è ben servita ed il prezzo è davvero interessante per poter costruire un'abitazione singola ed indipendente.
Soluzione ideale per chi desidera costruire la propria abitazione secondo le proprie esigenze e personalizzazioni.
Consistenze
| Descrizione | Superficie | Sup. comm. |
|---|---|---|
| Principali | ||
| Terreno - piano terra | 500 Mq | 500 Mqc |
| Totale | 500 Mqc | |






