Rif: 003A
CASTELLETTO SOPRA TICINO
NOVARA
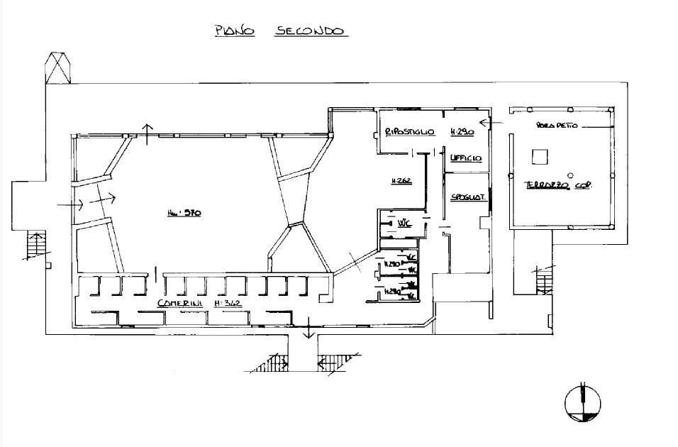
Proponiamo in vendita ampio locale commerciale situato al secondo piano, ideale per diverse attività grazie ai suoi spazi funzionali e alla posizione strategica. L'immobile è composto da un ampio salone, camerini, bagni, ripostiglio, ufficio, spogliatoio e un terrazzo coperto, la struttura è circondata da una spaziosa balconata che offre luminosità naturale. L'accesso all'unità immobiliare è agevolato da un ascensore e da tre vani scala posizionati sui lati nord, est e ovest. La solidità del fabbricato è garantita da una struttura portante in cemento armato con tamponamenti esterni in muratura e una copertura con travi in legno. I serramenti esterni, che sono in alluminio con vetro doppio, assicurano isolamento termico e acustico; i pavimenti sono in gres in tutti gli ambienti e i rivestimenti dei bagni sono in ceramica. Ampio parcheggio libero a disposizione. La posizione centrale tra le vie Sempione e del Lago rende questo locale facilmente raggiungibile e altamente visibile, a soli 3 km dalla stazione ferroviaria di Sesto Calende e 18 km dall'aeroporto di Milano Malpensa mentre il centro di Castelletto Sopra Ticino dista 4 km. La posizione è strategica, adiacente alla SS33 del Sempione, un'importante arteria di collegamento tra Milano e la Svizzera, e a 3 km dal casello autostradale dell'A8/A26. La zona è ben servita dai trasporti pubblici extraurbani, con la fermata più vicina (Castelletto, Sempione fr. 163, Cicognola) situata a soli 210 metri.
Consistenze
| Descrizione | Superficie | Sup. comm. |
|---|---|---|
| Principali | ||
| Negozio - 2° piano | 521 Mq | 521 Mqc |
| Totale | 521 Mqc | |






